Резервуары и металлоконструкции
от завода-производителя

Доставка по всей России!

slide-s02

Двустенный горизонтальный резервуар РГСД-25 м3

Сфера применения двустенных резервуаров модели РГСД-25 м³

Двустенные резервуары горизонтального типа, объемом 25 м³ используются при необходимости организовать временное хранение и дозированную выдачу жидких продуктов (характеризующихся пониженным уровнем агрессивности), сжиженных газов, а также технической воды. Изготавливаются такие накопительные емкости в строгом соответствии с ГОСТ 17032-2010.

Завод Резервуаров и Негабаритных Металлоконструкций осуществляет комплексные поставки двустенных резервуаров объемом 25 м³ по ценам предприятия-изготовителя. Обеспечивается начало изготовления в день поступления платежа, отгрузка – по готовности, в кратчайшие сроки.

Основные нормативно-технические документы

Изготовление РГСД-25 м³ осуществляется в строгом соответствии со следующими отраслевыми стандартами:

Параметр Наименование док-та Номер
днища конические ГОСТ 12619-12623;  
Используемый прокат листовой стальной 19903
Требования к проведению сварочных работ 23518 14771 11534
Общие техусловия, предъявляемые к прокату для строительных стальных конструкций 27772
Маркировка 14192
Нормы противопожарной безопасности ГОСТ 12.1.007
Климатическое исп-е (У1, УХЛ1) -/- 15150

Назначение двустестенных резервуаров РГСД-100 м3

Резервуары стальные двустенные применяются на предприятиях добывающей углеводороды сферы, при организации временного хранения, транспортировки, дозированной выдачи:

  • Жидких неагрессивных продуктов: нефть, нефтепродукты, ГСМ, различные виды топлива;
  • Газы с сжиженном состоянии;
  • Техническая вода.

Допускается хранение всех вышеперечисленных запасов материальных средств при плотности вещества, не превышающей 1300 кг/м³. при организации хранения веществ, в целях обеспечения правил противопожарной защиты и охраны труда необходимо обеспечить плотность не более 0,07 МПа.

Основные технические характеристики

V, м³ D, м L,м Опоры M, тонн S поверхности, м²
изнутри снаружи
25 2,4 6,6 2 3,7 52 67

Требования в процессе повседневного применения эксплуатации:

№ п/п Параметр Ед. изм-я Результат
1 Т, температура °С + 50 - 60
2 Давление в созданном межстенном пространстве МПа ≤ 0,001
3 Уровень сейсмоопасности балл 7
4 Р внутреннее кгс/см² 0,7

Отличия конструктивных решений

Резервуар с двумя стенками представляет собой цилиндрический сосуд, расположенный в горизонтальном положении. Внутри размещен еще один сосуд, точно такой же формы, но меньшего размера.

Реализован принцип изготовления «стакан в стакане», что обеспечило:

  1. Повышение уровня экологической безопасности хранения нефтепродуктов;
  2. Сведение к минимуму вероятность утечки жидкости благодаря наличию межстенного пространства;
  3. Повышению уровня пожарной и взрывозащищенности;
  4. Сохранению тепла внутри емкостного оборудования;
  5. Снижение теплопотерь в процессе обогрева.
  6. Межстенное пространство может быть заполнено:
  • Различными видами демпфирующего вещества: тосол, антифриз, этиленгликоль;
  • Инертный газ (азот)
  • Теплоизоляционный укрывочный слой.
Нормы, установленные для жидкости, находящейся в межстенном пространстве Плотность не превышает показателей хранящегося топлива (среды)
Т вспышки не менее 100°С
Полная инертность, неспособность по своим параметрам вступать в любое химическое взаимодействие с материалами, из которых изготавливается резервуар
Обеспечение сохранности химических и физических параметров хранящихся в резервуаре жидких/газообразных веществ.

Требования к установке резервуаров:

Тип грунта
Неводонасышенные Водонасышенные

- Ро не превышает 1,7 т/м³;

- величина угла естественного откоса – не более 30°;

- предельная высота засыпки резервуара (от верхней части до уровня земли) – 1,2 м, без учета высоты снежного покрова зимой.

 

- Ро ≤ 1,1 т/м³;  

- засыпка по аналогичным требованиям;

- залегание  грунтовых вод в непосредственной близости к поверхности земли.

Конструктивные требования резервуаров РГСД-100 м3

Используемые штуцеры. При обеспечении эффективной и безопасной работы с резервуарами, контроля состояния хранимого продукта и других важных параметров, используется ряд штуцеров:

Использование Кол-во Способ уплотнения соединения
Контроль наполнения 1 Шип-паз
Точка выдачи продукта 1 -/-
Обеспечение обесшламливания 1 гладкое
Дренаж (в межстенном пространстве 1 -/-
Наполнение пространства между стенками азотом 1 -/-
Выход воздуха 1 Резьбовое соединение
«Дыхательный» клапан для основного резервуара 1 гладкое
Точка замера уровня 1 -/-
Защита от переполнения (блокиратор) 1 -/-
Точка входа / выхода тпелоносителя 2 -/-
Обеспечение монтажа тех. оборудования 1 -/-
Люк внешнего, визуального осмотра 1 -/-
Монтаж измерительных приборов 3 Резьбовое

Используемые при изготовлении элементы конструкции:

Основные Вспомогательные

- стенки;

- днища;

- внутренние секции;

- ребра для повышения жесткости каркаса;

- различные лючки

- опорные элементы;

- усиливающие накладки.

- лестницы, смотровые и технологические площадки, переходы и ограждения безопасности

Применение стали

Основные Вспомогательные
Исключительно углеродистая углеродистая: (ПС), (К).

Специализированная компания Завод РиНМ оперативно и на высоком качественном уровне организует изготовление и осуществляет доставку изделий марки РГСД и объемом 25 метров кубических. Для оформления заказа достаточно подать заявку (по телефону или через адрес электронной почты) и указать марку стали, вид проката, желаемые сроки и количество изделий.

Обращайтесь!

Преимущества

  • Цены от производителя

  • Гарантия качества

  • Комплектация объектов под ключ

  • Производим монтаж/демонтаж

  • Оперативная доставка в любой регион

  • Быстрые сроки поставки,
    четкое соблюдение сроков

  • Персональный подход

  • Гарантийное обслуживание

  • Разработка КМД от 2-х
    рабочих дней

  • Составление КП от 15 минут

Подготовим коммерческое предложение
с учетом ваших индивидуальных технических требований

Скачать опросный лист

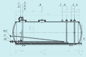
Технические характеристики

ОБОЗНАЧЕНИЕ

НАЗНАЧЕНИЕ

А

для установки оборудования

Б

для наполнения

В

для установки датчика сигнализации уровня наполнения

Г

для установки дыхательного клапана

Д

для установки замерного устройства

Е

для наполнения межстенного пространства

Ж

смотровой люк

И

линия обесшламливания

К

для дренажа межстенного пространства

М1

для входа теплоносителя

М2

для выхода теплоносителя

Н

для выдачи продукта хранения

Р

для установки газоанализатора

С

для установки термометра

Т

для выхода воздуха

 

Чертеж

Чертеж Двустенный горизонтальный резервуар РГСД-25 м3

Доставка

Чтобы избавить Вас от необходимости поиска логистической компании, мы готовы взять на себя работу по осуществлению доставки оборудования на Ваш объект.

Преимущества осуществления доставки при помощи нашей компании:

  • Работа только с проверенными временем подрядчиками
  • Четкое соблюдение сроков
  • Разумные цены
  • При необходимости, груз можно застраховать
  • Стоимость услуги рассчитывается индивидуально, в зависимости от региона доставки и объема груза.

Свяжитесь с нашим менеджером по телефону или через форму сайта и мы подготовим для Вас расчет.

Скачать опросный лист